Projekt Beschreibung

Neustrukturierung der Telefonanlagen Inhouse Verkabelung. Softwareupdate der TK-Anlage.
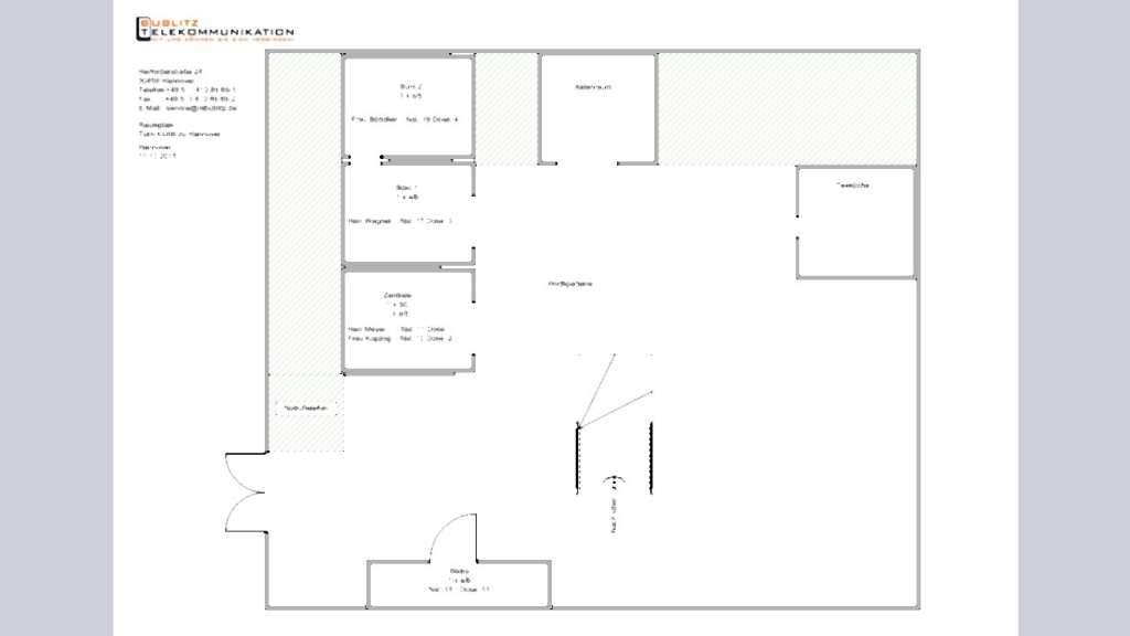
Dem Turn-Klubb zu Hannover wurde ein Raum- und Anschlussplan sowie Rufnummerplan in A3-Druck erstellt.
Original- Kundenbewertungsbogen Turn -Klub zu Hannover
-
Angebot
-
Service
-
Preis/Leistung
4
-
Angebot
-
Service
-
Preis/Leistung
4
Für Vollbildansicht auf Bild klicken




